Staff housing at Jarlmadangah Burru

Nyikina Country, Jarlmadangah Burru, Western Australia

About the project

There is a chronic undersupply of housing in Aboriginal communities in the Kimberley. Families that want to return to live on Country are unable to because they would have nowhere to live. Jarlmadangah Burru Aboriginal Corporation (JBAC) is reviving its cultural tourism (KDAT) business and – to complement and strengthen that venture – it is developing glamping accommodation (Kimberley Dreamtime Eco Retreat) at a great nearby location. As a result, the need for more housing in Jarlmadangah Burru is acute.

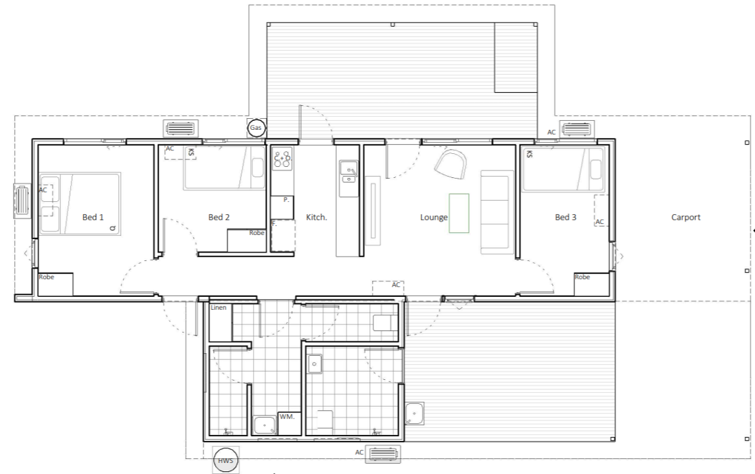
This project is to build three new houses on vacant blocks marked in the community layout plan on the eastern side of the community. Two will be for employees of local community ventures; the third will be for staff of organisations providing services to community.

Our role

Metio coordinated early-stage project development, concept design, site investigations, landholder approval and stakeholder support, and we are in process of securing funding to complete the project.

Location

Project impact

This project will:

  • increase the supply of quality housing in community – the foundation for health and wellbeing

  • enable more Nyikina Mangala people to be employed in community

  • contribute to higher retention rates among staff of local businesses

  • boost the local and regional economy

Start your community project today