Community service hubs

Timber Creek and Bulla

The breezeway in the community service hub at Bulla

About the project

Ngaliwurru-Wuli Aboriginal Corporation (NWAC) is in Timber Creek (traditionally known as Makalamayi, on the lands of Ngaliwurru and Nungali people) in the Northern Territory. They are a community service provider for Timber Creek and surrounding homelands.

This project is split over two sites. One is a renovation; the other is a new build:

  • NWAC’s community service hub in Bulla is being renovated to convert the breezeway into a comfortable interior space, add internet stations and air-conditioning and improve insulation.

  • In Timber Creek, a new facility is being built.

Our role

For this project, NWAC already had a grant from DSS. Metio was brought in to coordinate detailed design, liaise with the donor and manage the construction project.

Project team

  • Client: Ngaliwurru-Wuli Aboriginal Corporation

  • Grant: Commonwealth Department of Social Services – Community-led Solutions Economic Development

  • Builders: Northern Transportables (Timber Creek) and Ngaliwurru-Wuli Aboriginal Corporation (Bulla)

Location

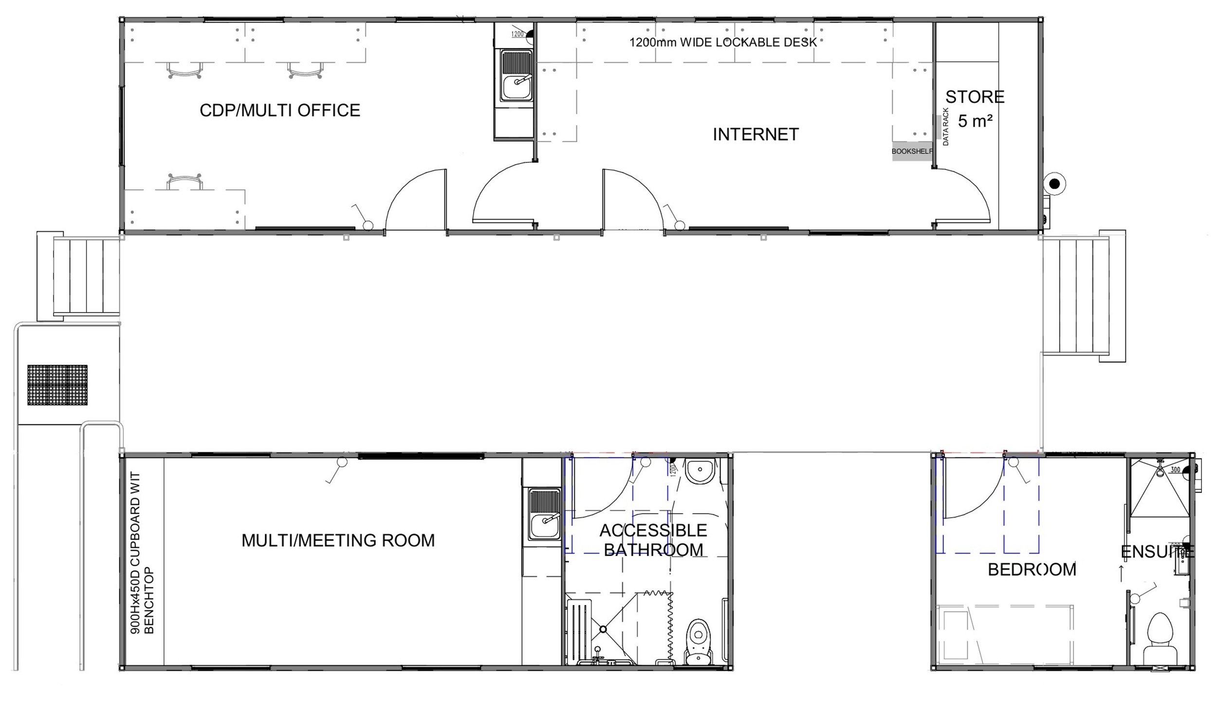
Plan drawing of Timber Creek community service hub, showing an office, internet room, store room, meeting room, bathroom and bedroom with ensuite. Through the middle is a breezeway

Project impact

During construction, the project will provide employment to community members. Once complete, the community service hubs will host service providers and CDP programs, and support collaboration between Ngaliwurru-Wuli and its partner organisations. The facilities will also:

  • improve access to online education and training opportunities

  • improve access to online services

  • improve digital literacy

  • smooth pathways to employment and

  • (at the new facility in Timber Creek) provide emergency accommodation.

Start your community project today